Commercial

141 MARKET ST

$785,000


  • MLS#: 65270
  • Address: 141 MARKET ST, ONANCOCK, VA 23417
  • County: Accomack
  • Subdivision: ONANCOCK
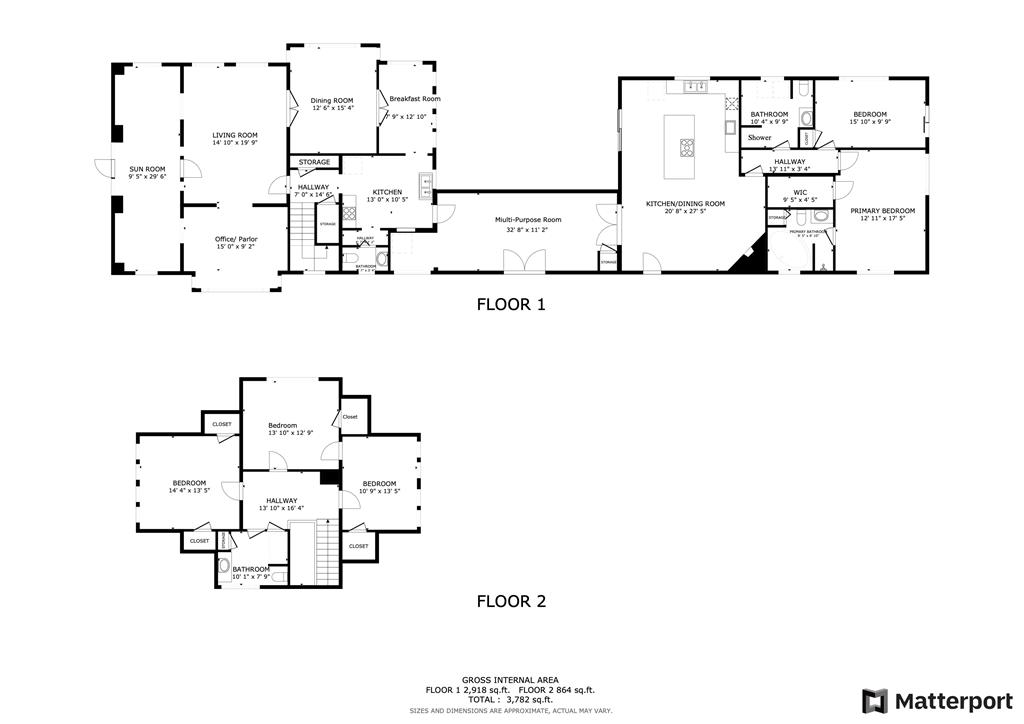
  • Building SQFT: 3744
  • Acres: 1-1.9 acres +/-
  • Stories: Vinyl Tile,Wood
  • Year Built: 1930
  • Zoning: Commercial

Location Location

Agent Comments Agent Comments
ECONOMIC ENTERPRISE ZONE COMMERICAL and RESIDENTIAL right on Market Street in highly sought after Onancock. Situated on a 1+ acre lot this property offer space for a business with ample off street parking AND the potential for 2 residences. This property is soooo much more than the expansive, stick built craftsman style home facing the street with a second residential unit addition comprised of 2 bedrooms and 2 baths, a multi car detached garage with work room. This property is fenced on 2 sides with a park like rear and side yards perfect for entertaining or an outside venue. YOU REALLY MUST see this property to take it all in. OPEN HOUSE 10/10/25 2:30-4:30, stop by.

Interior Features Interior Features
  • Interior Features: Boiler, Fixtures/Furniture, Additional Building, Other-See Remarks
  • Air Conditioning: Central A/C, Window Unit(s), Other-See Remarks
  • Heating: Circulating Hot Water, Boiler, Heat Pump(s), Other-See Remarks
  • Water: Public

Exterior Features Exterior Features
  • Exterior: Other
  • Parking: 11+ Spaces, Other-See Remarks

Additional Features Additional Features
  • County: Accomack
  • Waterfront Features: NON-WATER
  • Stories: Vinyl Tile,Wood
  • Year Built: 1930
  • Zoning: Commercial
  • Lot Size: 1.1 AC